1-к, Мамина переулок, 6 Показать на карте
Тракторозаводский район, Первоозёрный пос.
Челябинск
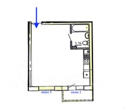
Уютная 1-комнатная квартира с видом на озеро в Тракторозаводском районе!Ищете комфортное жилье с прекрасным видом? Эта светлая и просторная квартира идеальный вариант для вас!Основные характеристики: Площадь: 1 комната, общая площадь около 32, 4 кв.м (17 кв.м комната, 9 кв.м кухня) Этаж: 1 этаж в 9 этажном доме (удобно для семей с детьми и пожилых людей) Ремонт: Качественный ремонт, выровнены стены и полы. Раздельный санузел в кафеле. Окна и балкон: Евроостекление (хорошая звукоизоляция и тепло) Пол: ЛинолеумПреимущества: Мебель и техника в подарок! (Кухонный гарнитур, плита, холодильник, обеденная зона, стиральная машина, шкаф для одежды, диваны) Прекрасный вид на Первое озеро! Развитая инфраструктура: * Школа 59 и 19 во дворе * Детские сады 251, 300 в шаговой доступности * Городская поликлиника рядом * В шаговой доступности магазины: Пятерочка, Магнит, Монетка, Спар, овощной рынок, Первоозерный торговый центр (10 минут ходьбы) Тихий и благоустроенный двор: Вторая линия от дороги, спокойное место. Отличная транспортная доступность: Остановки общественного транспорта в 5 минутах ходьбы, удобная транспортная развязка.Дополнительно:На территории озера: оборудованный пляж, рыбалка (зимняя и летняя), каток, лыжи, волейбол.Цена: 3 600 000 ,реальному покупателю торг.Не упустите возможность стать владельцем этой замечательной квартиры!Звоните прямо сейчас для записи на просмотр: (лучше звонить с 10:00 до 20:00).Ваш новый дом ждет вас!Арт. 133767711
32 м2
1 / 9 этаж
Панель
- Показать контакты
- Добавить в избранное
32 м2
1 / 9 этаж
Панель
3 600 000
111 111 /м2
