3-к, Днепропетровская, гп 2.3.1 Показать на карте
Советский район, АМЗ пос.
Челябинск, Симфония
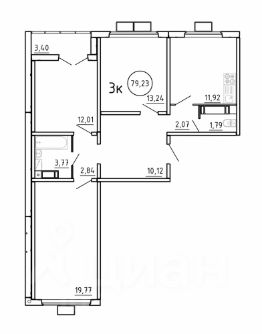
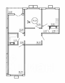
Продаётся 3-комнатная квартира в строящемся доме (Дом 2.3.1), срок сдачи: III-кв. 2027, общей площадью 79.23 кв.м., на 9 этаже. Жилой комплекс ''Симфония'' - гармония внутри, гармония снаружи. Ансамбль жилого комплекса ''Симфония'' состоит из домов разной этажности, что позволяет обеспечить достаточное количество света для всего двора. Преимущества ЖК Симфония Транспортная доступностьЖК ''Симфония'' расположен близко к центру города и имеет хорошую транспортную доступность, рядом проходят более 15 маршрутов, позволяющих быстро добраться до разных районов. Повышенная комфортность Жилой комплекс ''Симфония'' отличается уютными внутренними дворами с оригинальным ландшафтным дизайном, огороженной территорией и отсутствием автомобилей, что делает их безопасными и удобными для отдыха и прогулок. Квартиры с отделкойМы заботимся о вашем времени и предлагаем квартиры с уже готовой базовой отделкой. Заезжайте и живите! Всё рядомВ пешей доступности находятся школы и детские сады, гипермаркет и торговый центр, поликлиники. Близко к природеНаслаждайтесь прогулками вдоль Шершней, устройте пробежку в сосновом бору или проведите время за городом с семьёй. Выбирайте любимый вид отдыха, ведь до всего - рукой подать. Спортивные площадкиЗанятие спортом на свежем воздухе становятся реальностью. На территории комплекса будут размещены несколько спортивных площадок, где можно заниматься различными видами спорта. Игровые площадкиВ жилом комплексе ''Симфония'' предусмотрены игровые площадки для детей разного возраста. Это позволит детям весело и с пользой проводить время на свежем воздухе, развивая свои физические и умственные способности. КолясочныеВ каждом дома предусмотрены специальные места для хранения колясок и велосипедов, чтобы всем жильцам было комфортно. Безбарьерная средаБлагодаря удачным архитектурным решениям и созданию безбарьерной среды, жилой комплекс ''Симфония'' будет комфортным и удобным для проживания семей с маленькими детьми и маломобильных групп населения.
79 м2
9 / 16 этаж
Кирпич - монолит
- Показать контакты
- Добавить в избранное
79 м2
9 / 16 этаж
Кирпич - монолит
9 428 370
119 000 /м2
Новостройка,
III-2027
III-2027
