Мы объединились! Теперь объявления сразу на двух сайтах. Ищите там, где удобно
Приложение Циан
Личный кабинет
Сообщения
Избранное
  • Добавить объявление
  • Ипотека
  • Подбор риелтора
  • Журнал
  • Шаблоны документов
  • Продажа
  • Аренда
  • Новостройки
  • Коммерческая
  • Бизнес-центры
  • Дачи, участки
  • Земля
  • Гаражи

Продажа трехкомнатных квартир в Челябинске

1186 объяв.
1/27
9 336 740 ₽
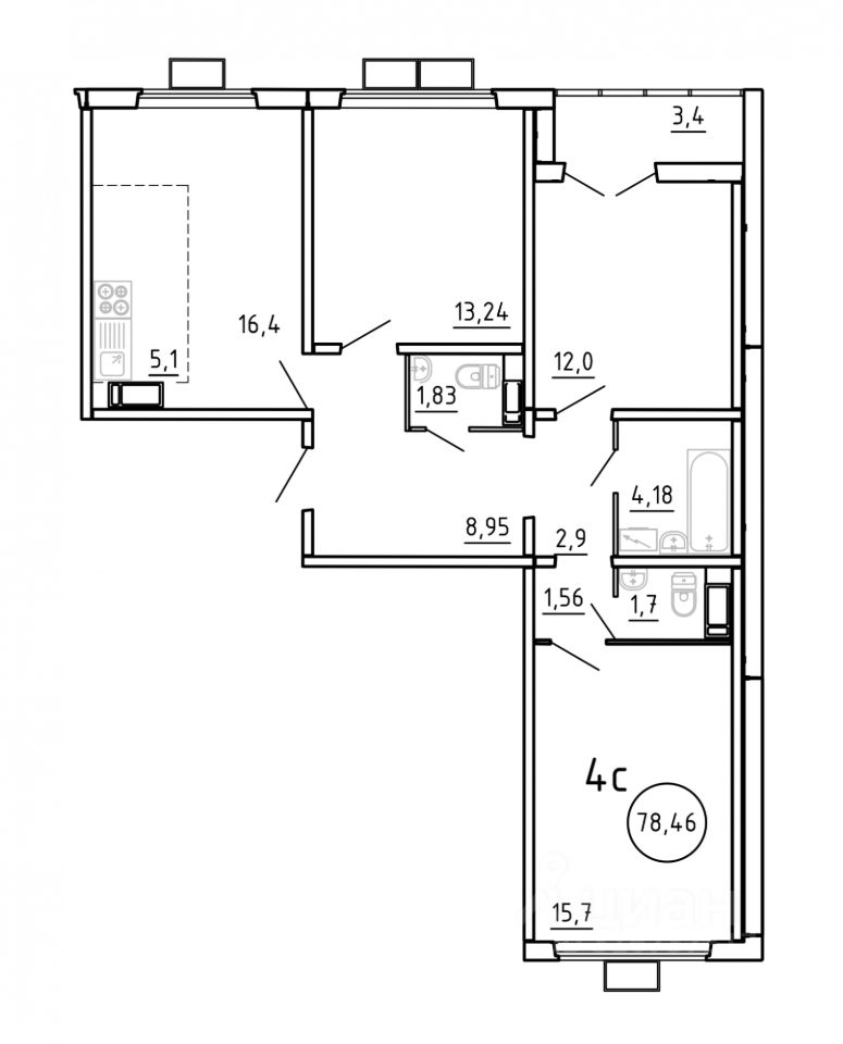
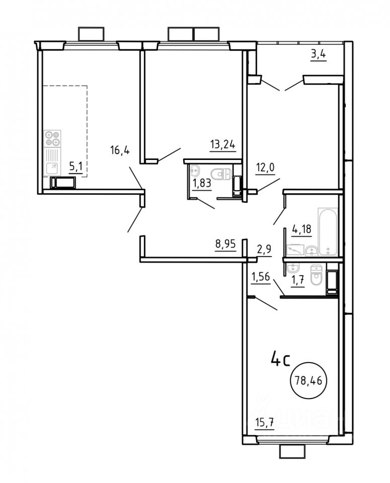
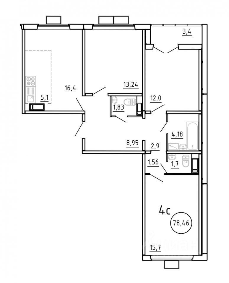
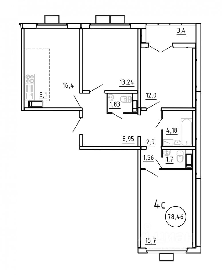
3-к, Днепропетровская, гп 2.3.1
АМЗ пос., Советский район
78 м² · Этаж 9 из 16
Новостройка, 3 кв. 2027
Продаётся 3-комнатная квартира в строящемся доме (Дом 2.3.1), срок сдачи: III-кв. 2027, общей площадью 78.46 кв.м., на 9 этаже. Жилой комплекс ''Симфония'' - гармония внутри, гармония снаружи. Ансамбль жилого комплекса ''Симфония'' состоит из домов разной этажности, что позволяет обеспечить достаточное количество света для всего двора. Преимущества ЖК Симфония Транспортная доступностьЖК ''Симфония'' расположен близко к центру города и имеет хорошую транспортную доступность, рядом проходят более 15 маршрутов, позволяющих быстро добраться до разных районов. Повышенная комфортность Жилой комплекс ''Симфония'' отличается уютными внутренними дворами с оригинальным ландшафтным дизайном, огороженной территорией и отсутствием автомобилей, что делает их безопасными и удобными для отдыха и прогулок. Квартиры с отделкойМы заботимся о вашем времени и предлагаем квартиры с уже готовой базовой отделкой. Заезжайте и живите! Всё рядомВ пешей доступности находятся школы и детские сады, гипермаркет и торговый центр, поликлиники. Близко к природеНаслаждайтесь прогулками вдоль Шершней, устройте пробежку в сосновом бору или проведите время за городом с семьёй. Выбирайте любимый вид отдыха, ведь до всего - рукой подать. Спортивные площадкиЗанятие спортом на свежем воздухе становятся реальностью. На территории комплекса будут размещены несколько спортивных площадок, где можно заниматься различными видами спорта. Игровые площадкиВ жилом комплексе ''Симфония'' предусмотрены игровые площадки для детей разного возраста. Это позволит детям весело и с пользой проводить время на свежем воздухе, развивая свои физические и умственные способности. КолясочныеВ каждом дома предусмотрены специальные места для хранения колясок и велосипедов, чтобы всем жильцам было комфортно. Безбарьерная средаБлагодаря удачным архитектурным решениям и созданию безбарьерной среды, жилой комплекс ''Симфония'' будет комфортным и удобным для проживания семей с маленькими детьми и маломобильных групп населения.
1/27
9 759 860 ₽
3-к, Днепропетровская, гп 2.3.1
АМЗ пос., Советский район
80 м² · Этаж 10 из 16
Новостройка, 3 кв. 2027
Продаётся 3-комнатная квартира в строящемся доме (Дом 2.3.1), срок сдачи: III-кв. 2027, общей площадью 77.92 кв.м., на 10 этаже. Жилой комплекс ''Симфония'' - гармония внутри, гармония снаружи. Ансамбль жилого комплекса ''Симфония'' состоит из домов разной этажности, что позволяет обеспечить достаточное количество света для всего двора. Преимущества ЖК Симфония Транспортная доступностьЖК ''Симфония'' расположен близко к центру города и имеет хорошую транспортную доступность, рядом проходят более 15 маршрутов, позволяющих быстро добраться до разных районов. Повышенная комфортность Жилой комплекс ''Симфония'' отличается уютными внутренними дворами с оригинальным ландшафтным дизайном, огороженной территорией и отсутствием автомобилей, что делает их безопасными и удобными для отдыха и прогулок. Квартиры с отделкойМы заботимся о вашем времени и предлагаем квартиры с уже готовой базовой отделкой. Заезжайте и живите! Всё рядомВ пешей доступности находятся школы и детские сады, гипермаркет и торговый центр, поликлиники. Близко к природеНаслаждайтесь прогулками вдоль Шершней, устройте пробежку в сосновом бору или проведите время за городом с семьёй. Выбирайте любимый вид отдыха, ведь до всего - рукой подать. Спортивные площадкиЗанятие спортом на свежем воздухе становятся реальностью. На территории комплекса будут размещены несколько спортивных площадок, где можно заниматься различными видами спорта. Игровые площадкиВ жилом комплексе ''Симфония'' предусмотрены игровые площадки для детей разного возраста. Это позволит детям весело и с пользой проводить время на свежем воздухе, развивая свои физические и умственные способности. КолясочныеВ каждом дома предусмотрены специальные места для хранения колясок и велосипедов, чтобы всем жильцам было комфортно. Безбарьерная средаБлагодаря удачным архитектурным решениям и созданию безбарьерной среды, жилой комплекс ''Симфония'' будет комфортным и удобным для проживания семей с маленькими детьми и маломобильных групп населения.
1/27
9 759 860 ₽
3-к, Днепропетровская, гп 2.3.1
АМЗ пос., Советский район
80 м² · Этаж 11 из 16
Новостройка, 3 кв. 2027
Продаётся 3-комнатная квартира в строящемся доме (Дом 2.3.1), срок сдачи: III-кв. 2027, общей площадью 77.92 кв.м., на 11 этаже. Жилой комплекс ''Симфония'' - гармония внутри, гармония снаружи. Ансамбль жилого комплекса ''Симфония'' состоит из домов разной этажности, что позволяет обеспечить достаточное количество света для всего двора. Преимущества ЖК Симфония Транспортная доступностьЖК ''Симфония'' расположен близко к центру города и имеет хорошую транспортную доступность, рядом проходят более 15 маршрутов, позволяющих быстро добраться до разных районов. Повышенная комфортность Жилой комплекс ''Симфония'' отличается уютными внутренними дворами с оригинальным ландшафтным дизайном, огороженной территорией и отсутствием автомобилей, что делает их безопасными и удобными для отдыха и прогулок. Квартиры с отделкойМы заботимся о вашем времени и предлагаем квартиры с уже готовой базовой отделкой. Заезжайте и живите! Всё рядомВ пешей доступности находятся школы и детские сады, гипермаркет и торговый центр, поликлиники. Близко к природеНаслаждайтесь прогулками вдоль Шершней, устройте пробежку в сосновом бору или проведите время за городом с семьёй. Выбирайте любимый вид отдыха, ведь до всего - рукой подать. Спортивные площадкиЗанятие спортом на свежем воздухе становятся реальностью. На территории комплекса будут размещены несколько спортивных площадок, где можно заниматься различными видами спорта. Игровые площадкиВ жилом комплексе ''Симфония'' предусмотрены игровые площадки для детей разного возраста. Это позволит детям весело и с пользой проводить время на свежем воздухе, развивая свои физические и умственные способности. КолясочныеВ каждом дома предусмотрены специальные места для хранения колясок и велосипедов, чтобы всем жильцам было комфортно. Безбарьерная средаБлагодаря удачным архитектурным решениям и созданию безбарьерной среды, жилой комплекс ''Симфония'' будет комфортным и удобным для проживания семей с маленькими детьми и маломобильных групп населения.
1/27
9 493 660 ₽
3-к, Днепропетровская, гп 2.3.1
АМЗ пос., Советский район
78 м² · Этаж 10 из 16
Новостройка, 3 кв. 2027
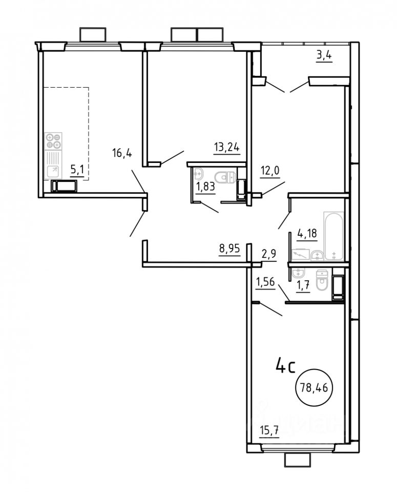
Продаётся 3-комнатная квартира в строящемся доме (Дом 2.3.1), срок сдачи: III-кв. 2027, общей площадью 78.46 кв.м., на 10 этаже. Жилой комплекс ''Симфония'' - гармония внутри, гармония снаружи. Ансамбль жилого комплекса ''Симфония'' состоит из домов разной этажности, что позволяет обеспечить достаточное количество света для всего двора. Преимущества ЖК Симфония Транспортная доступностьЖК ''Симфония'' расположен близко к центру города и имеет хорошую транспортную доступность, рядом проходят более 15 маршрутов, позволяющих быстро добраться до разных районов. Повышенная комфортность Жилой комплекс ''Симфония'' отличается уютными внутренними дворами с оригинальным ландшафтным дизайном, огороженной территорией и отсутствием автомобилей, что делает их безопасными и удобными для отдыха и прогулок. Квартиры с отделкойМы заботимся о вашем времени и предлагаем квартиры с уже готовой базовой отделкой. Заезжайте и живите! Всё рядомВ пешей доступности находятся школы и детские сады, гипермаркет и торговый центр, поликлиники. Близко к природеНаслаждайтесь прогулками вдоль Шершней, устройте пробежку в сосновом бору или проведите время за городом с семьёй. Выбирайте любимый вид отдыха, ведь до всего - рукой подать. Спортивные площадкиЗанятие спортом на свежем воздухе становятся реальностью. На территории комплекса будут размещены несколько спортивных площадок, где можно заниматься различными видами спорта. Игровые площадкиВ жилом комплексе ''Симфония'' предусмотрены игровые площадки для детей разного возраста. Это позволит детям весело и с пользой проводить время на свежем воздухе, развивая свои физические и умственные способности. КолясочныеВ каждом дома предусмотрены специальные места для хранения колясок и велосипедов, чтобы всем жильцам было комфортно. Безбарьерная средаБлагодаря удачным архитектурным решениям и созданию безбарьерной среды, жилой комплекс ''Симфония'' будет комфортным и удобным для проживания семей с маленькими детьми и маломобильных групп населения.
1/27
9 437 220 ₽
3-к, Днепропетровская, гп 2.3.1
АМЗ пос., Советский район
80 м² · Этаж 6 из 16
Новостройка, 3 кв. 2027
Продаётся 3-комнатная квартира в строящемся доме (Дом 2.3.1), срок сдачи: III-кв. 2027, общей площадью 77.92 кв.м., на 6 этаже. Жилой комплекс ''Симфония'' - гармония внутри, гармония снаружи. Ансамбль жилого комплекса ''Симфония'' состоит из домов разной этажности, что позволяет обеспечить достаточное количество света для всего двора. Преимущества ЖК Симфония Транспортная доступностьЖК ''Симфония'' расположен близко к центру города и имеет хорошую транспортную доступность, рядом проходят более 15 маршрутов, позволяющих быстро добраться до разных районов. Повышенная комфортность Жилой комплекс ''Симфония'' отличается уютными внутренними дворами с оригинальным ландшафтным дизайном, огороженной территорией и отсутствием автомобилей, что делает их безопасными и удобными для отдыха и прогулок. Квартиры с отделкойМы заботимся о вашем времени и предлагаем квартиры с уже готовой базовой отделкой. Заезжайте и живите! Всё рядомВ пешей доступности находятся школы и детские сады, гипермаркет и торговый центр, поликлиники. Близко к природеНаслаждайтесь прогулками вдоль Шершней, устройте пробежку в сосновом бору или проведите время за городом с семьёй. Выбирайте любимый вид отдыха, ведь до всего - рукой подать. Спортивные площадкиЗанятие спортом на свежем воздухе становятся реальностью. На территории комплекса будут размещены несколько спортивных площадок, где можно заниматься различными видами спорта. Игровые площадкиВ жилом комплексе ''Симфония'' предусмотрены игровые площадки для детей разного возраста. Это позволит детям весело и с пользой проводить время на свежем воздухе, развивая свои физические и умственные способности. КолясочныеВ каждом дома предусмотрены специальные места для хранения колясок и велосипедов, чтобы всем жильцам было комфортно. Безбарьерная средаБлагодаря удачным архитектурным решениям и созданию безбарьерной среды, жилой комплекс ''Симфония'' будет комфортным и удобным для проживания семей с маленькими детьми и маломобильных групп населения.
1/27
9 598 540 ₽
3-к, Днепропетровская, гп 2.3.1
АМЗ пос., Советский район
80 м² · Этаж 7 из 16
Новостройка, 3 кв. 2027
Продаётся 3-комнатная квартира в строящемся доме (Дом 2.3.1), срок сдачи: III-кв. 2027, общей площадью 77.92 кв.м., на 7 этаже. Жилой комплекс ''Симфония'' - гармония внутри, гармония снаружи. Ансамбль жилого комплекса ''Симфония'' состоит из домов разной этажности, что позволяет обеспечить достаточное количество света для всего двора. Преимущества ЖК Симфония Транспортная доступностьЖК ''Симфония'' расположен близко к центру города и имеет хорошую транспортную доступность, рядом проходят более 15 маршрутов, позволяющих быстро добраться до разных районов. Повышенная комфортность Жилой комплекс ''Симфония'' отличается уютными внутренними дворами с оригинальным ландшафтным дизайном, огороженной территорией и отсутствием автомобилей, что делает их безопасными и удобными для отдыха и прогулок. Квартиры с отделкойМы заботимся о вашем времени и предлагаем квартиры с уже готовой базовой отделкой. Заезжайте и живите! Всё рядомВ пешей доступности находятся школы и детские сады, гипермаркет и торговый центр, поликлиники. Близко к природеНаслаждайтесь прогулками вдоль Шершней, устройте пробежку в сосновом бору или проведите время за городом с семьёй. Выбирайте любимый вид отдыха, ведь до всего - рукой подать. Спортивные площадкиЗанятие спортом на свежем воздухе становятся реальностью. На территории комплекса будут размещены несколько спортивных площадок, где можно заниматься различными видами спорта. Игровые площадкиВ жилом комплексе ''Симфония'' предусмотрены игровые площадки для детей разного возраста. Это позволит детям весело и с пользой проводить время на свежем воздухе, развивая свои физические и умственные способности. КолясочныеВ каждом дома предусмотрены специальные места для хранения колясок и велосипедов, чтобы всем жильцам было комфортно. Безбарьерная средаБлагодаря удачным архитектурным решениям и созданию безбарьерной среды, жилой комплекс ''Симфония'' будет комфортным и удобным для проживания семей с маленькими детьми и маломобильных групп населения.

Подбор риелтора

Риелтор поможет купить или продать любую недвижимость

Оставить заявку
1/27
9 598 540 ₽
3-к, Днепропетровская, гп 2.3.1
АМЗ пос., Советский район
80 м² · Этаж 9 из 16
Новостройка, 3 кв. 2027
Продаётся 3-комнатная квартира в строящемся доме (Дом 2.3.1), срок сдачи: III-кв. 2027, общей площадью 77.92 кв.м., на 9 этаже. Жилой комплекс ''Симфония'' - гармония внутри, гармония снаружи. Ансамбль жилого комплекса ''Симфония'' состоит из домов разной этажности, что позволяет обеспечить достаточное количество света для всего двора. Преимущества ЖК Симфония Транспортная доступностьЖК ''Симфония'' расположен близко к центру города и имеет хорошую транспортную доступность, рядом проходят более 15 маршрутов, позволяющих быстро добраться до разных районов. Повышенная комфортность Жилой комплекс ''Симфония'' отличается уютными внутренними дворами с оригинальным ландшафтным дизайном, огороженной территорией и отсутствием автомобилей, что делает их безопасными и удобными для отдыха и прогулок. Квартиры с отделкойМы заботимся о вашем времени и предлагаем квартиры с уже готовой базовой отделкой. Заезжайте и живите! Всё рядомВ пешей доступности находятся школы и детские сады, гипермаркет и торговый центр, поликлиники. Близко к природеНаслаждайтесь прогулками вдоль Шершней, устройте пробежку в сосновом бору или проведите время за городом с семьёй. Выбирайте любимый вид отдыха, ведь до всего - рукой подать. Спортивные площадкиЗанятие спортом на свежем воздухе становятся реальностью. На территории комплекса будут размещены несколько спортивных площадок, где можно заниматься различными видами спорта. Игровые площадкиВ жилом комплексе ''Симфония'' предусмотрены игровые площадки для детей разного возраста. Это позволит детям весело и с пользой проводить время на свежем воздухе, развивая свои физические и умственные способности. КолясочныеВ каждом дома предусмотрены специальные места для хранения колясок и велосипедов, чтобы всем жильцам было комфортно. Безбарьерная средаБлагодаря удачным архитектурным решениям и созданию безбарьерной среды, жилой комплекс ''Симфония'' будет комфортным и удобным для проживания семей с маленькими детьми и маломобильных групп населения.
1/27
9 598 540 ₽
3-к, Днепропетровская, гп 2.3.1
АМЗ пос., Советский район
80 м² · Этаж 8 из 16
Новостройка, 3 кв. 2027
Продаётся 3-комнатная квартира в строящемся доме (Дом 2.3.1), срок сдачи: III-кв. 2027, общей площадью 77.92 кв.м., на 8 этаже. Жилой комплекс ''Симфония'' - гармония внутри, гармония снаружи. Ансамбль жилого комплекса ''Симфония'' состоит из домов разной этажности, что позволяет обеспечить достаточное количество света для всего двора. Преимущества ЖК Симфония Транспортная доступностьЖК ''Симфония'' расположен близко к центру города и имеет хорошую транспортную доступность, рядом проходят более 15 маршрутов, позволяющих быстро добраться до разных районов. Повышенная комфортность Жилой комплекс ''Симфония'' отличается уютными внутренними дворами с оригинальным ландшафтным дизайном, огороженной территорией и отсутствием автомобилей, что делает их безопасными и удобными для отдыха и прогулок. Квартиры с отделкойМы заботимся о вашем времени и предлагаем квартиры с уже готовой базовой отделкой. Заезжайте и живите! Всё рядомВ пешей доступности находятся школы и детские сады, гипермаркет и торговый центр, поликлиники. Близко к природеНаслаждайтесь прогулками вдоль Шершней, устройте пробежку в сосновом бору или проведите время за городом с семьёй. Выбирайте любимый вид отдыха, ведь до всего - рукой подать. Спортивные площадкиЗанятие спортом на свежем воздухе становятся реальностью. На территории комплекса будут размещены несколько спортивных площадок, где можно заниматься различными видами спорта. Игровые площадкиВ жилом комплексе ''Симфония'' предусмотрены игровые площадки для детей разного возраста. Это позволит детям весело и с пользой проводить время на свежем воздухе, развивая свои физические и умственные способности. КолясочныеВ каждом дома предусмотрены специальные места для хранения колясок и велосипедов, чтобы всем жильцам было комфортно. Безбарьерная средаБлагодаря удачным архитектурным решениям и созданию безбарьерной среды, жилой комплекс ''Симфония'' будет комфортным и удобным для проживания семей с маленькими детьми и маломобильных групп населения.
1/27
9 336 740 ₽
3-к, Днепропетровская, гп 2.3.1
АМЗ пос., Советский район
78 м² · Этаж 7 из 16
Новостройка, 3 кв. 2027
Продаётся 3-комнатная квартира в строящемся доме (Дом 2.3.1), срок сдачи: III-кв. 2027, общей площадью 78.46 кв.м., на 7 этаже. Жилой комплекс ''Симфония'' - гармония внутри, гармония снаружи. Ансамбль жилого комплекса ''Симфония'' состоит из домов разной этажности, что позволяет обеспечить достаточное количество света для всего двора. Преимущества ЖК Симфония Транспортная доступностьЖК ''Симфония'' расположен близко к центру города и имеет хорошую транспортную доступность, рядом проходят более 15 маршрутов, позволяющих быстро добраться до разных районов. Повышенная комфортность Жилой комплекс ''Симфония'' отличается уютными внутренними дворами с оригинальным ландшафтным дизайном, огороженной территорией и отсутствием автомобилей, что делает их безопасными и удобными для отдыха и прогулок. Квартиры с отделкойМы заботимся о вашем времени и предлагаем квартиры с уже готовой базовой отделкой. Заезжайте и живите! Всё рядомВ пешей доступности находятся школы и детские сады, гипермаркет и торговый центр, поликлиники. Близко к природеНаслаждайтесь прогулками вдоль Шершней, устройте пробежку в сосновом бору или проведите время за городом с семьёй. Выбирайте любимый вид отдыха, ведь до всего - рукой подать. Спортивные площадкиЗанятие спортом на свежем воздухе становятся реальностью. На территории комплекса будут размещены несколько спортивных площадок, где можно заниматься различными видами спорта. Игровые площадкиВ жилом комплексе ''Симфония'' предусмотрены игровые площадки для детей разного возраста. Это позволит детям весело и с пользой проводить время на свежем воздухе, развивая свои физические и умственные способности. КолясочныеВ каждом дома предусмотрены специальные места для хранения колясок и велосипедов, чтобы всем жильцам было комфортно. Безбарьерная средаБлагодаря удачным архитектурным решениям и созданию безбарьерной среды, жилой комплекс ''Симфония'' будет комфортным и удобным для проживания семей с маленькими детьми и маломобильных групп населения.
1/27
9 437 220 ₽
3-к, Днепропетровская, гп 2.3.1
АМЗ пос., Советский район
80 м² · Этаж 5 из 16
Новостройка, 3 кв. 2027
Продаётся 3-комнатная квартира в строящемся доме (Дом 2.3.1), срок сдачи: III-кв. 2027, общей площадью 77.92 кв.м., на 5 этаже. Жилой комплекс ''Симфония'' - гармония внутри, гармония снаружи. Ансамбль жилого комплекса ''Симфония'' состоит из домов разной этажности, что позволяет обеспечить достаточное количество света для всего двора. Преимущества ЖК Симфония Транспортная доступностьЖК ''Симфония'' расположен близко к центру города и имеет хорошую транспортную доступность, рядом проходят более 15 маршрутов, позволяющих быстро добраться до разных районов. Повышенная комфортность Жилой комплекс ''Симфония'' отличается уютными внутренними дворами с оригинальным ландшафтным дизайном, огороженной территорией и отсутствием автомобилей, что делает их безопасными и удобными для отдыха и прогулок. Квартиры с отделкойМы заботимся о вашем времени и предлагаем квартиры с уже готовой базовой отделкой. Заезжайте и живите! Всё рядомВ пешей доступности находятся школы и детские сады, гипермаркет и торговый центр, поликлиники. Близко к природеНаслаждайтесь прогулками вдоль Шершней, устройте пробежку в сосновом бору или проведите время за городом с семьёй. Выбирайте любимый вид отдыха, ведь до всего - рукой подать. Спортивные площадкиЗанятие спортом на свежем воздухе становятся реальностью. На территории комплекса будут размещены несколько спортивных площадок, где можно заниматься различными видами спорта. Игровые площадкиВ жилом комплексе ''Симфония'' предусмотрены игровые площадки для детей разного возраста. Это позволит детям весело и с пользой проводить время на свежем воздухе, развивая свои физические и умственные способности. КолясочныеВ каждом дома предусмотрены специальные места для хранения колясок и велосипедов, чтобы всем жильцам было комфортно. Безбарьерная средаБлагодаря удачным архитектурным решениям и созданию безбарьерной среды, жилой комплекс ''Симфония'' будет комфортным и удобным для проживания семей с маленькими детьми и маломобильных групп населения.
1/27
9 437 220 ₽
3-к, Днепропетровская, гп 2.3.1
АМЗ пос., Советский район
80 м² · Этаж 4 из 16
Новостройка, 3 кв. 2027
Продаётся 3-комнатная квартира в строящемся доме (Дом 2.3.1), срок сдачи: III-кв. 2027, общей площадью 77.92 кв.м., на 4 этаже. Жилой комплекс ''Симфония'' - гармония внутри, гармония снаружи. Ансамбль жилого комплекса ''Симфония'' состоит из домов разной этажности, что позволяет обеспечить достаточное количество света для всего двора. Преимущества ЖК Симфония Транспортная доступностьЖК ''Симфония'' расположен близко к центру города и имеет хорошую транспортную доступность, рядом проходят более 15 маршрутов, позволяющих быстро добраться до разных районов. Повышенная комфортность Жилой комплекс ''Симфония'' отличается уютными внутренними дворами с оригинальным ландшафтным дизайном, огороженной территорией и отсутствием автомобилей, что делает их безопасными и удобными для отдыха и прогулок. Квартиры с отделкойМы заботимся о вашем времени и предлагаем квартиры с уже готовой базовой отделкой. Заезжайте и живите! Всё рядомВ пешей доступности находятся школы и детские сады, гипермаркет и торговый центр, поликлиники. Близко к природеНаслаждайтесь прогулками вдоль Шершней, устройте пробежку в сосновом бору или проведите время за городом с семьёй. Выбирайте любимый вид отдыха, ведь до всего - рукой подать. Спортивные площадкиЗанятие спортом на свежем воздухе становятся реальностью. На территории комплекса будут размещены несколько спортивных площадок, где можно заниматься различными видами спорта. Игровые площадкиВ жилом комплексе ''Симфония'' предусмотрены игровые площадки для детей разного возраста. Это позволит детям весело и с пользой проводить время на свежем воздухе, развивая свои физические и умственные способности. КолясочныеВ каждом дома предусмотрены специальные места для хранения колясок и велосипедов, чтобы всем жильцам было комфортно. Безбарьерная средаБлагодаря удачным архитектурным решениям и созданию безбарьерной среды, жилой комплекс ''Симфония'' будет комфортным и удобным для проживания семей с маленькими детьми и маломобильных групп населения.
1/27
9 179 820 ₽
3-к, Днепропетровская, гп 2.3.1
АМЗ пос., Советский район
78 м² · Этаж 4 из 16
Новостройка, 3 кв. 2027
Продаётся 3-комнатная квартира в строящемся доме (Дом 2.3.1), срок сдачи: III-кв. 2027, общей площадью 78.46 кв.м., на 4 этаже. Жилой комплекс ''Симфония'' - гармония внутри, гармония снаружи. Ансамбль жилого комплекса ''Симфония'' состоит из домов разной этажности, что позволяет обеспечить достаточное количество света для всего двора. Преимущества ЖК Симфония Транспортная доступностьЖК ''Симфония'' расположен близко к центру города и имеет хорошую транспортную доступность, рядом проходят более 15 маршрутов, позволяющих быстро добраться до разных районов. Повышенная комфортность Жилой комплекс ''Симфония'' отличается уютными внутренними дворами с оригинальным ландшафтным дизайном, огороженной территорией и отсутствием автомобилей, что делает их безопасными и удобными для отдыха и прогулок. Квартиры с отделкойМы заботимся о вашем времени и предлагаем квартиры с уже готовой базовой отделкой. Заезжайте и живите! Всё рядомВ пешей доступности находятся школы и детские сады, гипермаркет и торговый центр, поликлиники. Близко к природеНаслаждайтесь прогулками вдоль Шершней, устройте пробежку в сосновом бору или проведите время за городом с семьёй. Выбирайте любимый вид отдыха, ведь до всего - рукой подать. Спортивные площадкиЗанятие спортом на свежем воздухе становятся реальностью. На территории комплекса будут размещены несколько спортивных площадок, где можно заниматься различными видами спорта. Игровые площадкиВ жилом комплексе ''Симфония'' предусмотрены игровые площадки для детей разного возраста. Это позволит детям весело и с пользой проводить время на свежем воздухе, развивая свои физические и умственные способности. КолясочныеВ каждом дома предусмотрены специальные места для хранения колясок и велосипедов, чтобы всем жильцам было комфортно. Безбарьерная средаБлагодаря удачным архитектурным решениям и созданию безбарьерной среды, жилой комплекс ''Симфония'' будет комфортным и удобным для проживания семей с маленькими детьми и маломобильных групп населения.
1/27
9 179 820 ₽
3-к, Днепропетровская, гп 2.3.1
АМЗ пос., Советский район
78 м² · Этаж 5 из 16
Новостройка, 3 кв. 2027
Продаётся 3-комнатная квартира в строящемся доме (Дом 2.3.1), срок сдачи: III-кв. 2027, общей площадью 78.46 кв.м., на 5 этаже. Жилой комплекс ''Симфония'' - гармония внутри, гармония снаружи. Ансамбль жилого комплекса ''Симфония'' состоит из домов разной этажности, что позволяет обеспечить достаточное количество света для всего двора. Преимущества ЖК Симфония Транспортная доступностьЖК ''Симфония'' расположен близко к центру города и имеет хорошую транспортную доступность, рядом проходят более 15 маршрутов, позволяющих быстро добраться до разных районов. Повышенная комфортность Жилой комплекс ''Симфония'' отличается уютными внутренними дворами с оригинальным ландшафтным дизайном, огороженной территорией и отсутствием автомобилей, что делает их безопасными и удобными для отдыха и прогулок. Квартиры с отделкойМы заботимся о вашем времени и предлагаем квартиры с уже готовой базовой отделкой. Заезжайте и живите! Всё рядомВ пешей доступности находятся школы и детские сады, гипермаркет и торговый центр, поликлиники. Близко к природеНаслаждайтесь прогулками вдоль Шершней, устройте пробежку в сосновом бору или проведите время за городом с семьёй. Выбирайте любимый вид отдыха, ведь до всего - рукой подать. Спортивные площадкиЗанятие спортом на свежем воздухе становятся реальностью. На территории комплекса будут размещены несколько спортивных площадок, где можно заниматься различными видами спорта. Игровые площадкиВ жилом комплексе ''Симфония'' предусмотрены игровые площадки для детей разного возраста. Это позволит детям весело и с пользой проводить время на свежем воздухе, развивая свои физические и умственные способности. КолясочныеВ каждом дома предусмотрены специальные места для хранения колясок и велосипедов, чтобы всем жильцам было комфортно. Безбарьерная средаБлагодаря удачным архитектурным решениям и созданию безбарьерной среды, жилой комплекс ''Симфония'' будет комфортным и удобным для проживания семей с маленькими детьми и маломобильных групп населения.
1/27
9 745 290 ₽
3-к, Днепропетровская, гп 2.3.1
АМЗ пос., Советский район
79 м² · Этаж 14 из 16
Новостройка, 3 кв. 2027
Продаётся 3-комнатная квартира в строящемся доме (Дом 2.3.1), срок сдачи: III-кв. 2027, общей площадью 79.23 кв.м., на 14 этаже. Жилой комплекс ''Симфония'' - гармония внутри, гармония снаружи. Ансамбль жилого комплекса ''Симфония'' состоит из домов разной этажности, что позволяет обеспечить достаточное количество света для всего двора. Преимущества ЖК Симфония Транспортная доступностьЖК ''Симфония'' расположен близко к центру города и имеет хорошую транспортную доступность, рядом проходят более 15 маршрутов, позволяющих быстро добраться до разных районов. Повышенная комфортность Жилой комплекс ''Симфония'' отличается уютными внутренними дворами с оригинальным ландшафтным дизайном, огороженной территорией и отсутствием автомобилей, что делает их безопасными и удобными для отдыха и прогулок. Квартиры с отделкойМы заботимся о вашем времени и предлагаем квартиры с уже готовой базовой отделкой. Заезжайте и живите! Всё рядомВ пешей доступности находятся школы и детские сады, гипермаркет и торговый центр, поликлиники. Близко к природеНаслаждайтесь прогулками вдоль Шершней, устройте пробежку в сосновом бору или проведите время за городом с семьёй. Выбирайте любимый вид отдыха, ведь до всего - рукой подать. Спортивные площадкиЗанятие спортом на свежем воздухе становятся реальностью. На территории комплекса будут размещены несколько спортивных площадок, где можно заниматься различными видами спорта. Игровые площадкиВ жилом комплексе ''Симфония'' предусмотрены игровые площадки для детей разного возраста. Это позволит детям весело и с пользой проводить время на свежем воздухе, развивая свои физические и умственные способности. КолясочныеВ каждом дома предусмотрены специальные места для хранения колясок и велосипедов, чтобы всем жильцам было комфортно. Безбарьерная средаБлагодаря удачным архитектурным решениям и созданию безбарьерной среды, жилой комплекс ''Симфония'' будет комфортным и удобным для проживания семей с маленькими детьми и маломобильных групп населения.
1/27
9 745 290 ₽
3-к, Днепропетровская, гп 2.3.1
АМЗ пос., Советский район
79 м² · Этаж 13 из 16
Новостройка, 3 кв. 2027
Продаётся 3-комнатная квартира в строящемся доме (Дом 2.3.1), срок сдачи: III-кв. 2027, общей площадью 79.23 кв.м., на 13 этаже. Жилой комплекс ''Симфония'' - гармония внутри, гармония снаружи. Ансамбль жилого комплекса ''Симфония'' состоит из домов разной этажности, что позволяет обеспечить достаточное количество света для всего двора. Преимущества ЖК Симфония Транспортная доступностьЖК ''Симфония'' расположен близко к центру города и имеет хорошую транспортную доступность, рядом проходят более 15 маршрутов, позволяющих быстро добраться до разных районов. Повышенная комфортность Жилой комплекс ''Симфония'' отличается уютными внутренними дворами с оригинальным ландшафтным дизайном, огороженной территорией и отсутствием автомобилей, что делает их безопасными и удобными для отдыха и прогулок. Квартиры с отделкойМы заботимся о вашем времени и предлагаем квартиры с уже готовой базовой отделкой. Заезжайте и живите! Всё рядомВ пешей доступности находятся школы и детские сады, гипермаркет и торговый центр, поликлиники. Близко к природеНаслаждайтесь прогулками вдоль Шершней, устройте пробежку в сосновом бору или проведите время за городом с семьёй. Выбирайте любимый вид отдыха, ведь до всего - рукой подать. Спортивные площадкиЗанятие спортом на свежем воздухе становятся реальностью. На территории комплекса будут размещены несколько спортивных площадок, где можно заниматься различными видами спорта. Игровые площадкиВ жилом комплексе ''Симфония'' предусмотрены игровые площадки для детей разного возраста. Это позволит детям весело и с пользой проводить время на свежем воздухе, развивая свои физические и умственные способности. КолясочныеВ каждом дома предусмотрены специальные места для хранения колясок и велосипедов, чтобы всем жильцам было комфортно. Безбарьерная средаБлагодаря удачным архитектурным решениям и созданию безбарьерной среды, жилой комплекс ''Симфония'' будет комфортным и удобным для проживания семей с маленькими детьми и маломобильных групп населения.
1/27
9 903 750 ₽
3-к, Днепропетровская, гп 2.3.1
АМЗ пос., Советский район
79 м² · Этаж 15 из 16
Новостройка, 3 кв. 2027
Продаётся 3-комнатная квартира в строящемся доме (Дом 2.3.1), срок сдачи: III-кв. 2027, общей площадью 79.23 кв.м., на 15 этаже. Жилой комплекс ''Симфония'' - гармония внутри, гармония снаружи. Ансамбль жилого комплекса ''Симфония'' состоит из домов разной этажности, что позволяет обеспечить достаточное количество света для всего двора. Преимущества ЖК Симфония Транспортная доступностьЖК ''Симфония'' расположен близко к центру города и имеет хорошую транспортную доступность, рядом проходят более 15 маршрутов, позволяющих быстро добраться до разных районов. Повышенная комфортность Жилой комплекс ''Симфония'' отличается уютными внутренними дворами с оригинальным ландшафтным дизайном, огороженной территорией и отсутствием автомобилей, что делает их безопасными и удобными для отдыха и прогулок. Квартиры с отделкойМы заботимся о вашем времени и предлагаем квартиры с уже готовой базовой отделкой. Заезжайте и живите! Всё рядомВ пешей доступности находятся школы и детские сады, гипермаркет и торговый центр, поликлиники. Близко к природеНаслаждайтесь прогулками вдоль Шершней, устройте пробежку в сосновом бору или проведите время за городом с семьёй. Выбирайте любимый вид отдыха, ведь до всего - рукой подать. Спортивные площадкиЗанятие спортом на свежем воздухе становятся реальностью. На территории комплекса будут размещены несколько спортивных площадок, где можно заниматься различными видами спорта. Игровые площадкиВ жилом комплексе ''Симфония'' предусмотрены игровые площадки для детей разного возраста. Это позволит детям весело и с пользой проводить время на свежем воздухе, развивая свои физические и умственные способности. КолясочныеВ каждом дома предусмотрены специальные места для хранения колясок и велосипедов, чтобы всем жильцам было комфортно. Безбарьерная средаБлагодаря удачным архитектурным решениям и созданию безбарьерной среды, жилой комплекс ''Симфония'' будет комфортным и удобным для проживания семей с маленькими детьми и маломобильных групп населения.
1/27
9 903 750 ₽
3-к, Днепропетровская, гп 2.3.1
АМЗ пос., Советский район
79 м² · Этаж 16 из 16
Новостройка, 3 кв. 2027
Продаётся 3-комнатная квартира в строящемся доме (Дом 2.3.1), срок сдачи: III-кв. 2027, общей площадью 79.23 кв.м., на 16 этаже. Жилой комплекс ''Симфония'' - гармония внутри, гармония снаружи. Ансамбль жилого комплекса ''Симфония'' состоит из домов разной этажности, что позволяет обеспечить достаточное количество света для всего двора. Преимущества ЖК Симфония Транспортная доступностьЖК ''Симфония'' расположен близко к центру города и имеет хорошую транспортную доступность, рядом проходят более 15 маршрутов, позволяющих быстро добраться до разных районов. Повышенная комфортность Жилой комплекс ''Симфония'' отличается уютными внутренними дворами с оригинальным ландшафтным дизайном, огороженной территорией и отсутствием автомобилей, что делает их безопасными и удобными для отдыха и прогулок. Квартиры с отделкойМы заботимся о вашем времени и предлагаем квартиры с уже готовой базовой отделкой. Заезжайте и живите! Всё рядомВ пешей доступности находятся школы и детские сады, гипермаркет и торговый центр, поликлиники. Близко к природеНаслаждайтесь прогулками вдоль Шершней, устройте пробежку в сосновом бору или проведите время за городом с семьёй. Выбирайте любимый вид отдыха, ведь до всего - рукой подать. Спортивные площадкиЗанятие спортом на свежем воздухе становятся реальностью. На территории комплекса будут размещены несколько спортивных площадок, где можно заниматься различными видами спорта. Игровые площадкиВ жилом комплексе ''Симфония'' предусмотрены игровые площадки для детей разного возраста. Это позволит детям весело и с пользой проводить время на свежем воздухе, развивая свои физические и умственные способности. КолясочныеВ каждом дома предусмотрены специальные места для хранения колясок и велосипедов, чтобы всем жильцам было комфортно. Безбарьерная средаБлагодаря удачным архитектурным решениям и созданию безбарьерной среды, жилой комплекс ''Симфония'' будет комфортным и удобным для проживания семей с маленькими детьми и маломобильных групп населения.
1/27
9 275 900 ₽
3-к, Днепропетровская, гп 2.3.1
АМЗ пос., Советский район
80 м² · Этаж 2 из 16
Новостройка, 3 кв. 2027
Продаётся 3-комнатная квартира в строящемся доме (Дом 2.3.1), срок сдачи: III-кв. 2027, общей площадью 77.92 кв.м., на 2 этаже. Жилой комплекс ''Симфония'' - гармония внутри, гармония снаружи. Ансамбль жилого комплекса ''Симфония'' состоит из домов разной этажности, что позволяет обеспечить достаточное количество света для всего двора. Преимущества ЖК Симфония Транспортная доступностьЖК ''Симфония'' расположен близко к центру города и имеет хорошую транспортную доступность, рядом проходят более 15 маршрутов, позволяющих быстро добраться до разных районов. Повышенная комфортность Жилой комплекс ''Симфония'' отличается уютными внутренними дворами с оригинальным ландшафтным дизайном, огороженной территорией и отсутствием автомобилей, что делает их безопасными и удобными для отдыха и прогулок. Квартиры с отделкойМы заботимся о вашем времени и предлагаем квартиры с уже готовой базовой отделкой. Заезжайте и живите! Всё рядомВ пешей доступности находятся школы и детские сады, гипермаркет и торговый центр, поликлиники. Близко к природеНаслаждайтесь прогулками вдоль Шершней, устройте пробежку в сосновом бору или проведите время за городом с семьёй. Выбирайте любимый вид отдыха, ведь до всего - рукой подать. Спортивные площадкиЗанятие спортом на свежем воздухе становятся реальностью. На территории комплекса будут размещены несколько спортивных площадок, где можно заниматься различными видами спорта. Игровые площадкиВ жилом комплексе ''Симфония'' предусмотрены игровые площадки для детей разного возраста. Это позволит детям весело и с пользой проводить время на свежем воздухе, развивая свои физические и умственные способности. КолясочныеВ каждом дома предусмотрены специальные места для хранения колясок и велосипедов, чтобы всем жильцам было комфортно. Безбарьерная средаБлагодаря удачным архитектурным решениям и созданию безбарьерной среды, жилой комплекс ''Симфония'' будет комфортным и удобным для проживания семей с маленькими детьми и маломобильных групп населения.
1/27
9 745 290 ₽
3-к, Днепропетровская, гп 2.3.1
АМЗ пос., Советский район
79 м² · Этаж 14 из 16
Новостройка, 3 кв. 2027
Продаётся 3-комнатная квартира в строящемся доме (Дом 2.3.1), срок сдачи: III-кв. 2027, общей площадью 79.23 кв.м., на 14 этаже. Жилой комплекс ''Симфония'' - гармония внутри, гармония снаружи. Ансамбль жилого комплекса ''Симфония'' состоит из домов разной этажности, что позволяет обеспечить достаточное количество света для всего двора. Преимущества ЖК Симфония Транспортная доступностьЖК ''Симфония'' расположен близко к центру города и имеет хорошую транспортную доступность, рядом проходят более 15 маршрутов, позволяющих быстро добраться до разных районов. Повышенная комфортность Жилой комплекс ''Симфония'' отличается уютными внутренними дворами с оригинальным ландшафтным дизайном, огороженной территорией и отсутствием автомобилей, что делает их безопасными и удобными для отдыха и прогулок. Квартиры с отделкойМы заботимся о вашем времени и предлагаем квартиры с уже готовой базовой отделкой. Заезжайте и живите! Всё рядомВ пешей доступности находятся школы и детские сады, гипермаркет и торговый центр, поликлиники. Близко к природеНаслаждайтесь прогулками вдоль Шершней, устройте пробежку в сосновом бору или проведите время за городом с семьёй. Выбирайте любимый вид отдыха, ведь до всего - рукой подать. Спортивные площадкиЗанятие спортом на свежем воздухе становятся реальностью. На территории комплекса будут размещены несколько спортивных площадок, где можно заниматься различными видами спорта. Игровые площадкиВ жилом комплексе ''Симфония'' предусмотрены игровые площадки для детей разного возраста. Это позволит детям весело и с пользой проводить время на свежем воздухе, развивая свои физические и умственные способности. КолясочныеВ каждом дома предусмотрены специальные места для хранения колясок и велосипедов, чтобы всем жильцам было комфортно. Безбарьерная средаБлагодаря удачным архитектурным решениям и созданию безбарьерной среды, жилой комплекс ''Симфония'' будет комфортным и удобным для проживания семей с маленькими детьми и маломобильных групп населения.
1/27
9 903 750 ₽
3-к, Днепропетровская, гп 2.3.1
АМЗ пос., Советский район
79 м² · Этаж 15 из 16
Новостройка, 3 кв. 2027
Продаётся 3-комнатная квартира в строящемся доме (Дом 2.3.1), срок сдачи: III-кв. 2027, общей площадью 79.23 кв.м., на 15 этаже. Жилой комплекс ''Симфония'' - гармония внутри, гармония снаружи. Ансамбль жилого комплекса ''Симфония'' состоит из домов разной этажности, что позволяет обеспечить достаточное количество света для всего двора. Преимущества ЖК Симфония Транспортная доступностьЖК ''Симфония'' расположен близко к центру города и имеет хорошую транспортную доступность, рядом проходят более 15 маршрутов, позволяющих быстро добраться до разных районов. Повышенная комфортность Жилой комплекс ''Симфония'' отличается уютными внутренними дворами с оригинальным ландшафтным дизайном, огороженной территорией и отсутствием автомобилей, что делает их безопасными и удобными для отдыха и прогулок. Квартиры с отделкойМы заботимся о вашем времени и предлагаем квартиры с уже готовой базовой отделкой. Заезжайте и живите! Всё рядомВ пешей доступности находятся школы и детские сады, гипермаркет и торговый центр, поликлиники. Близко к природеНаслаждайтесь прогулками вдоль Шершней, устройте пробежку в сосновом бору или проведите время за городом с семьёй. Выбирайте любимый вид отдыха, ведь до всего - рукой подать. Спортивные площадкиЗанятие спортом на свежем воздухе становятся реальностью. На территории комплекса будут размещены несколько спортивных площадок, где можно заниматься различными видами спорта. Игровые площадкиВ жилом комплексе ''Симфония'' предусмотрены игровые площадки для детей разного возраста. Это позволит детям весело и с пользой проводить время на свежем воздухе, развивая свои физические и умственные способности. КолясочныеВ каждом дома предусмотрены специальные места для хранения колясок и велосипедов, чтобы всем жильцам было комфортно. Безбарьерная средаБлагодаря удачным архитектурным решениям и созданию безбарьерной среды, жилой комплекс ''Симфония'' будет комфортным и удобным для проживания семей с маленькими детьми и маломобильных групп населения.
1/27
9 903 750 ₽
3-к, Днепропетровская, гп 2.3.1
АМЗ пос., Советский район
79 м² · Этаж 16 из 16
Новостройка, 3 кв. 2027
Продаётся 3-комнатная квартира в строящемся доме (Дом 2.3.1), срок сдачи: III-кв. 2027, общей площадью 79.23 кв.м., на 16 этаже. Жилой комплекс ''Симфония'' - гармония внутри, гармония снаружи. Ансамбль жилого комплекса ''Симфония'' состоит из домов разной этажности, что позволяет обеспечить достаточное количество света для всего двора. Преимущества ЖК Симфония Транспортная доступностьЖК ''Симфония'' расположен близко к центру города и имеет хорошую транспортную доступность, рядом проходят более 15 маршрутов, позволяющих быстро добраться до разных районов. Повышенная комфортность Жилой комплекс ''Симфония'' отличается уютными внутренними дворами с оригинальным ландшафтным дизайном, огороженной территорией и отсутствием автомобилей, что делает их безопасными и удобными для отдыха и прогулок. Квартиры с отделкойМы заботимся о вашем времени и предлагаем квартиры с уже готовой базовой отделкой. Заезжайте и живите! Всё рядомВ пешей доступности находятся школы и детские сады, гипермаркет и торговый центр, поликлиники. Близко к природеНаслаждайтесь прогулками вдоль Шершней, устройте пробежку в сосновом бору или проведите время за городом с семьёй. Выбирайте любимый вид отдыха, ведь до всего - рукой подать. Спортивные площадкиЗанятие спортом на свежем воздухе становятся реальностью. На территории комплекса будут размещены несколько спортивных площадок, где можно заниматься различными видами спорта. Игровые площадкиВ жилом комплексе ''Симфония'' предусмотрены игровые площадки для детей разного возраста. Это позволит детям весело и с пользой проводить время на свежем воздухе, развивая свои физические и умственные способности. КолясочныеВ каждом дома предусмотрены специальные места для хранения колясок и велосипедов, чтобы всем жильцам было комфортно. Безбарьерная средаБлагодаря удачным архитектурным решениям и созданию безбарьерной среды, жилой комплекс ''Симфония'' будет комфортным и удобным для проживания семей с маленькими детьми и маломобильных групп населения.
1/27
9 586 830 ₽
3-к, Днепропетровская, гп 2.3.1
АМЗ пос., Советский район
79 м² · Этаж 10 из 16
Новостройка, 3 кв. 2027
Продаётся 3-комнатная квартира в строящемся доме (Дом 2.3.1), срок сдачи: III-кв. 2027, общей площадью 79.23 кв.м., на 10 этаже. Жилой комплекс ''Симфония'' - гармония внутри, гармония снаружи. Ансамбль жилого комплекса ''Симфония'' состоит из домов разной этажности, что позволяет обеспечить достаточное количество света для всего двора. Преимущества ЖК Симфония Транспортная доступностьЖК ''Симфония'' расположен близко к центру города и имеет хорошую транспортную доступность, рядом проходят более 15 маршрутов, позволяющих быстро добраться до разных районов. Повышенная комфортность Жилой комплекс ''Симфония'' отличается уютными внутренними дворами с оригинальным ландшафтным дизайном, огороженной территорией и отсутствием автомобилей, что делает их безопасными и удобными для отдыха и прогулок. Квартиры с отделкойМы заботимся о вашем времени и предлагаем квартиры с уже готовой базовой отделкой. Заезжайте и живите! Всё рядомВ пешей доступности находятся школы и детские сады, гипермаркет и торговый центр, поликлиники. Близко к природеНаслаждайтесь прогулками вдоль Шершней, устройте пробежку в сосновом бору или проведите время за городом с семьёй. Выбирайте любимый вид отдыха, ведь до всего - рукой подать. Спортивные площадкиЗанятие спортом на свежем воздухе становятся реальностью. На территории комплекса будут размещены несколько спортивных площадок, где можно заниматься различными видами спорта. Игровые площадкиВ жилом комплексе ''Симфония'' предусмотрены игровые площадки для детей разного возраста. Это позволит детям весело и с пользой проводить время на свежем воздухе, развивая свои физические и умственные способности. КолясочныеВ каждом дома предусмотрены специальные места для хранения колясок и велосипедов, чтобы всем жильцам было комфортно. Безбарьерная средаБлагодаря удачным архитектурным решениям и созданию безбарьерной среды, жилой комплекс ''Симфония'' будет комфортным и удобным для проживания семей с маленькими детьми и маломобильных групп населения.
1/27
9 428 370 ₽
3-к, Днепропетровская, гп 2.3.1
АМЗ пос., Советский район
79 м² · Этаж 9 из 16
Новостройка, 3 кв. 2027
Продаётся 3-комнатная квартира в строящемся доме (Дом 2.3.1), срок сдачи: III-кв. 2027, общей площадью 79.23 кв.м., на 9 этаже. Жилой комплекс ''Симфония'' - гармония внутри, гармония снаружи. Ансамбль жилого комплекса ''Симфония'' состоит из домов разной этажности, что позволяет обеспечить достаточное количество света для всего двора. Преимущества ЖК Симфония Транспортная доступностьЖК ''Симфония'' расположен близко к центру города и имеет хорошую транспортную доступность, рядом проходят более 15 маршрутов, позволяющих быстро добраться до разных районов. Повышенная комфортность Жилой комплекс ''Симфония'' отличается уютными внутренними дворами с оригинальным ландшафтным дизайном, огороженной территорией и отсутствием автомобилей, что делает их безопасными и удобными для отдыха и прогулок. Квартиры с отделкойМы заботимся о вашем времени и предлагаем квартиры с уже готовой базовой отделкой. Заезжайте и живите! Всё рядомВ пешей доступности находятся школы и детские сады, гипермаркет и торговый центр, поликлиники. Близко к природеНаслаждайтесь прогулками вдоль Шершней, устройте пробежку в сосновом бору или проведите время за городом с семьёй. Выбирайте любимый вид отдыха, ведь до всего - рукой подать. Спортивные площадкиЗанятие спортом на свежем воздухе становятся реальностью. На территории комплекса будут размещены несколько спортивных площадок, где можно заниматься различными видами спорта. Игровые площадкиВ жилом комплексе ''Симфония'' предусмотрены игровые площадки для детей разного возраста. Это позволит детям весело и с пользой проводить время на свежем воздухе, развивая свои физические и умственные способности. КолясочныеВ каждом дома предусмотрены специальные места для хранения колясок и велосипедов, чтобы всем жильцам было комфортно. Безбарьерная средаБлагодаря удачным архитектурным решениям и созданию безбарьерной среды, жилой комплекс ''Симфония'' будет комфортным и удобным для проживания семей с маленькими детьми и маломобильных групп населения.
1/27
9 586 830 ₽
3-к, Днепропетровская, гп 2.3.1
АМЗ пос., Советский район
79 м² · Этаж 11 из 16
Новостройка, 3 кв. 2027
Продаётся 3-комнатная квартира в строящемся доме (Дом 2.3.1), срок сдачи: III-кв. 2027, общей площадью 79.23 кв.м., на 11 этаже. Жилой комплекс ''Симфония'' - гармония внутри, гармония снаружи. Ансамбль жилого комплекса ''Симфония'' состоит из домов разной этажности, что позволяет обеспечить достаточное количество света для всего двора. Преимущества ЖК Симфония Транспортная доступностьЖК ''Симфония'' расположен близко к центру города и имеет хорошую транспортную доступность, рядом проходят более 15 маршрутов, позволяющих быстро добраться до разных районов. Повышенная комфортность Жилой комплекс ''Симфония'' отличается уютными внутренними дворами с оригинальным ландшафтным дизайном, огороженной территорией и отсутствием автомобилей, что делает их безопасными и удобными для отдыха и прогулок. Квартиры с отделкойМы заботимся о вашем времени и предлагаем квартиры с уже готовой базовой отделкой. Заезжайте и живите! Всё рядомВ пешей доступности находятся школы и детские сады, гипермаркет и торговый центр, поликлиники. Близко к природеНаслаждайтесь прогулками вдоль Шершней, устройте пробежку в сосновом бору или проведите время за городом с семьёй. Выбирайте любимый вид отдыха, ведь до всего - рукой подать. Спортивные площадкиЗанятие спортом на свежем воздухе становятся реальностью. На территории комплекса будут размещены несколько спортивных площадок, где можно заниматься различными видами спорта. Игровые площадкиВ жилом комплексе ''Симфония'' предусмотрены игровые площадки для детей разного возраста. Это позволит детям весело и с пользой проводить время на свежем воздухе, развивая свои физические и умственные способности. КолясочныеВ каждом дома предусмотрены специальные места для хранения колясок и велосипедов, чтобы всем жильцам было комфортно. Безбарьерная средаБлагодаря удачным архитектурным решениям и созданию безбарьерной среды, жилой комплекс ''Симфония'' будет комфортным и удобным для проживания семей с маленькими детьми и маломобильных групп населения.
1/27
9 428 370 ₽
3-к, Днепропетровская, гп 2.3.1
АМЗ пос., Советский район
79 м² · Этаж 8 из 16
Новостройка, 3 кв. 2027
Продаётся 3-комнатная квартира в строящемся доме (Дом 2.3.1), срок сдачи: III-кв. 2027, общей площадью 79.23 кв.м., на 8 этаже. Жилой комплекс ''Симфония'' - гармония внутри, гармония снаружи. Ансамбль жилого комплекса ''Симфония'' состоит из домов разной этажности, что позволяет обеспечить достаточное количество света для всего двора. Преимущества ЖК Симфония Транспортная доступностьЖК ''Симфония'' расположен близко к центру города и имеет хорошую транспортную доступность, рядом проходят более 15 маршрутов, позволяющих быстро добраться до разных районов. Повышенная комфортность Жилой комплекс ''Симфония'' отличается уютными внутренними дворами с оригинальным ландшафтным дизайном, огороженной территорией и отсутствием автомобилей, что делает их безопасными и удобными для отдыха и прогулок. Квартиры с отделкойМы заботимся о вашем времени и предлагаем квартиры с уже готовой базовой отделкой. Заезжайте и живите! Всё рядомВ пешей доступности находятся школы и детские сады, гипермаркет и торговый центр, поликлиники. Близко к природеНаслаждайтесь прогулками вдоль Шершней, устройте пробежку в сосновом бору или проведите время за городом с семьёй. Выбирайте любимый вид отдыха, ведь до всего - рукой подать. Спортивные площадкиЗанятие спортом на свежем воздухе становятся реальностью. На территории комплекса будут размещены несколько спортивных площадок, где можно заниматься различными видами спорта. Игровые площадкиВ жилом комплексе ''Симфония'' предусмотрены игровые площадки для детей разного возраста. Это позволит детям весело и с пользой проводить время на свежем воздухе, развивая свои физические и умственные способности. КолясочныеВ каждом дома предусмотрены специальные места для хранения колясок и велосипедов, чтобы всем жильцам было комфортно. Безбарьерная средаБлагодаря удачным архитектурным решениям и созданию безбарьерной среды, жилой комплекс ''Симфония'' будет комфортным и удобным для проживания семей с маленькими детьми и маломобильных групп населения.
  • 13
  • 14
  • 15
  • 16
  1. Недвижимость в Челябинске
  2. Продажа
  3. Квартиры
  4. Новостройки
  5. 3-комнатные
  6. 1186 объявлений

Может быть полезно

Ипотека

Узнайте за 10 минут, какой кредит вам одобрят банки

Подбор риелтора

Риелтор поможет купить или продать любую недвижимость

Продажа трехкомнатных квартир в новостройках в Челябинске
  • по районам
  • Калининский район
  • Курчатовский район
  • Ленинский район
  • Металлургический район
  • Советский район
  • Тракторозаводский район
  • Центральный район

Некоторые материалы настоящего раздела могут содержать информацию, запрещенную для детей, не достигших шести лет.

Информация о возрастных ограничениях в отношении информационной продукции, подлежащая распространению на основании норм Федерального закона «О защите детей от информации, причиняющей вред их здоровью и развитию».

О компанииСправочный центрВакансииПрайс-листНовый DomChel.ru
© ООО «Н1.РУ»  Правила использования

Некоторые материалы настоящего раздела могут содержать информацию, запрещенную для детей, не достигших шести лет.

Информация о возрастных ограничениях в отношении информационной продукции, подлежащая распространению на основании норм Федерального закона «О защите детей от информации, причиняющей вред их здоровью и развитию».

Новостройки
Студии
Однокомнатные
Двухкомнатные
Трехкомнатные
Четырехкомнатные
Многокомнатные
Каталоги
Выделение цветом
Спецпредложение
Топ
Турбо
Вторичка
Однокомнатные
Комнаты
Студии
Коттеджи
Дома
Аренда недвижимости
Квартиры
Комнаты
Студии
Коттеджи
Дома
Города
Архангельск
Екатеринбург
Красноярск
Новосибирск
Омск
Пермь
Тюмень
Челябинск
Все города
Карта сайта
 Купите трехкомнатную квартиру в Челябинске - 1 186 объявлений в каталоге жилой недвижимости на N1. Средняя цена продажи или покупки жилья составляет 11,2 млн ₽. Покупайте трехкомнатные квартиры недорого на сайте N1.ru.