1-к, Нефтебазовая, гп 13 Показать на карте
Советский район
Челябинск, Жилой комплекс «НИКС ЛАЙН на Блюхера»
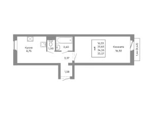
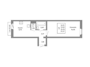
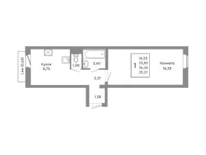
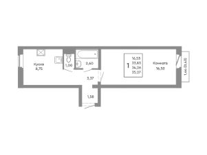
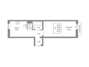
Продаётся 1-комнатная квартира в строящемся доме (Дом 13), срок сдачи: II-кв. 2027, общей площадью 34.26 кв.м., на 8 этаже.
34 м2
8 / 10 этаж
Панель
- Показать контакты
- Добавить в избранное
34 м2
8 / 10 этаж
Панель
4 556 580
133 000 /м2
Новостройка,
II-2027
II-2027
