Коттедж, Парусная (мкр Белые росы), 8 Показать на карте
Кременкуль
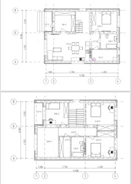
Белые Росы- клубный поселок для семейного проживания, с собственным пляжем, спортивными площадками.Гостевой дом 80 метров со 100% готовностью Заезжай живи ,усадьба расположена на тупиковой улице, откуда есть выход на **приватную аллею с беседкой и собственный пляж1 этаж:- камин- очаг - обеденная зона - кухня-гостиная- парная - сан.узел.- душевая- лестница на второй этаж.2 этаж:- комната отдыха со всей необходимой мебелью.- бойлерная.!!! Этот дом расположен рядом с замечательным и всеми любимым озером Большой Кременкуль, на котором расположены отличные пляжи и места досуга.- Газоблок ИНСИ, снаружи утеплена и закрыта сайдингом, выполнена так же на монолитно-ленточномфундаменте на буро-заливных сваях, кровля метало-черепица . Коммуникации - автономная канализация,вода со скважины, эл. 380В., отопление по классической системе - теплые полы и радиаторы.В поселке пропускная система въезда КПП, охраняемая территория 24/7.До центра города 15 минут.Рядом располагается вся необходимая инфраструктура, для полноценной загородной жизни и отдыха.Жилой дом общей площадью 211 м2, максимально удачное планировочное решение: просторная гостиная, много пространства, где отлично разместится кухня и гостиная как центр притяжения. Здесь можно проводить семейные ужины и совместные просмотры фильмов.Просторные 4 спальные комнаты, 2 из которых мастер - спальни.1 ЭТАЖ:- кухня-гостиная 50 м2.- гостевая спальня 20 м2.- прихожая 7м2.- бойлерная 5м2.- санузел 5м2.- холл 17м2.- лестница на второй этаж.2 ЭТАЖ:- мастер-спальня хозяйская 20 м2.- мастер-спальня 22 м2.- спальня с гардеробом 21 м2.- просторная гардеробная с окном 9 м2.- санузел 5 м2.- холл 10 м2.Дом выполнен из следующих материалов:- Фундамент - монолитно-ленточный на буро-заливных сваях, монолитная лента, обратная отсыпка,монолитная плита.- Стены - облицовочный кирпич, утеплитель каменная вата 50мм, керамо-блок 370мм. перекрытия ж.б. плиты.- Кровля - метало-черепица.- Окна - снаружи ламинация, тройной стеклопакет, профиль 70мм., энергосберегающее остекление.- Вентиляция - выполнена вытяжная естественная вентиляция.- Коммуникации - рядом с домом расположен кессон для скважины, в дом заведены гильзы и труба соскважины, в данный момент скважина питает баню. Электричество - 380В в дом заведен кабель, так же вгильзе интернет кабель. Газ - в доме, оформлен, газовый котел. Септик - выполнен в виде автономнойканализации, все смонтировано, установлено и подключено.Идеальный по своей площади участок в 13 соток, позволит выполнить желаемый ландшафтный дизайн.Звоните! Сейчас! Записывайтесь на просмотр.Номер объекта: #1/539886/23208
211 м2
2 этажа
Кирпич
- Показать контакты
- Добавить в избранное
211 м2
2 этажа
Кирпич
25 000 000
118 483 /м2
