Дом, 8-й переулок, 1 Показать на карте
Еткуль
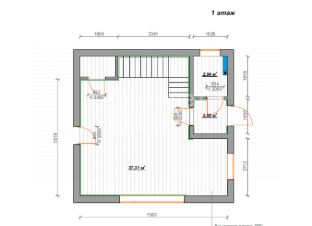
Продается двухэтажный загородный дом с сауной и бассейном на берегу живописного озера! Мечтаете о собственном уголке комфорта и спокойствия вдали от городской суеты? Этот дом — идеальный выбор!Возможно приобретение по программе сельская ипотека 3%! Общие характеристики: * Площадь дома: 112.7 кв.м. * Участок: 4.37 сотки * Количество комнат: 3 * Год постройки: 2023Первый этаж: На первом этаже расположена просторная гостиная с большими окнами, которые обеспечивают естественное освещение и открывают великолепный вид на озеро. Кухня оборудована современной техникой KORTIND и имеет уютную обеденную зону. Сауна с понорамным окном и композитным бассейном гарантируют максимальное расслабление. Для вашего удобства предусмотрен санузел и водяной теплый пол (семь контуров) по всему этажу.Второй этаж: Второй этаж включает в себя две уютные спальни, которые имеют выход на общую террасу — идеальное место для утреннего кофе или вечернего чтения. Также на этаже расположены ванная комната и санузел, оснащенный теплым полом для дополнительного комфорта.Дополнительные преимущества: * Центральное водоснабжение * Электричество 380В, 15 кВт * Три кондиционера LORIOT * Сигнализация (пожарная, охранная) * Видеонаблюдение по периметру (6 камер) * Близость к природным заповедникам Не упустите возможность стать владельцем этого замечательного уголка, созданного для тех, кто ищет спокойствие и комфорт! Покажем по договорённости.Звоните!Арт. 120793251
112 м2
2 этажа
- Показать контакты
- Добавить в избранное
112 м2
2 этажа
22 000 000
195 209 /м2
