Дом, Набережная, 62 Показать на карте
Тарутино
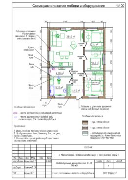
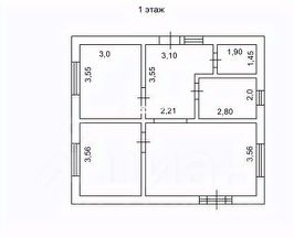
Продается квартира в двухквартирном доме с земельным участком 12 соток для ведения личного подсобного хозяйства.Жилая площадь 91 кв. м. Материал стен кирпич. В доме четыре жилых комнаты и кухня. Спальня 11 кв.м. Кабинет 11 кв.м. Гардероб - 3 кв.м. Гостиная 26 кв.м. Гостиная/спортзал 17 кв. м., кухня -16 кв.м. Ванная 6 кв.м. Водоснабжение центральное, канализация местная. В доме качественный свежий ремонт. Отопление газовое. Два котла. Пластиковые окна, натяжные потолки, на полу ламинат. На доме новая крыша, новый забор из профнастила. Интернет. В доме остаются кухонный гарнитур, в ванной всё, кроме стир.машины, остальная мебель по договоренности. В доме фактически не находимся только ночуем. Весь день проводим в летней кухне.На участке здание под магазин (по документам) площадью 45,2 кв.м. с земельным участком 89 кв.м. Фактически используется как круглогодичная летняя кухня со складским помещением, заведена вода, отопление, сан. узел, кондиционер. Отдельное помещение под кухню, гостиную и кабинет/склад. Два входа со двора и улицы. Гарнитур остается. Дом и летняя кухня соединены навесом, что позволяет переходить между помещениями не обуваясь.На участке: Два гаража. Один отапливаемый гараж перед домом под легковой авто. Второй на заднем дворе.Уютная баня на газу, заведена вода и отопление, предбанник и комната отдыха. Беседка, тапчан, мангальная зона из кирпича.Многочисленные хоз. постройки более 10 помещений под содержание птиц, хранение корма и складские помещения. На фото не все. Одновременно выращивали курей, уток, гусей и индюков. В отдельных постройках теплый пол. Необходимое условие при разведении птицы ранней весной. Подведена вода. Созданы все условия для разведения птицы и садоводства. Многочисленные места хранения, емкости для воды, вход на участок с трех сторон. Задний двор разделен на несколько отсеков для раздельного содержания птицы.В саду плодоносящие деревья и кустарники. Малина, клубника, вишня, груша, абрикос, яблони, красная, черная и белая смородина, ирга, жимолость, калина, роза, лилейник, виноград, большой цветник, газонная трава.Два огорода. Имеется разводка полива. Участок огорожен забором из проф.листа.Отличный капитальный сухой погреб, обложенный кирпичом (укомплектован полками и бетонной лестницей). Над погребом место для хранения садового инвентаря.Территория поселка асфальтирована, газифицирована, есть полная 11 летняя школа, детский сад, магазины.Отличный вариант для большой семьи. В общем, есть всё необходимое для ведения личного подсобного хозяйства. Один взрослый собственник. Продажа в связи с переездом. Дом и земля без обременений. Документы в порядке, хоть завтра на сделку.
91 м2
1 этаж
Кирпич
- Показать контакты
- Добавить в избранное
91 м2
1 этаж
Кирпич
5 099 999
56 044 /м2
