Дом, Полевая Показать на карте
Осиновка
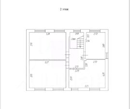
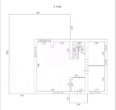
Дом для взыскательного покупателя. Фундамент :- Сваи бурозаливные диаметром 300мм высотой 2м через каждые 2м по периметру дома .- Буроленточный фундамент 600х400 (арматура метал 12мм ) по всему периметру дома .- Засыпка (скала +щебень) 600мм .-Фундамент перекрыт монолитной плитой толщиной 200мм (арматура металл 12мм) Веранда 74.4 м. кв с фундаментом, крыша утеплена Стены :- Наружние -выполнены из газоблока толщиной 400мм - Дополнительно установлено наружное утепление 50 мм с соблюдением всех технологических норм .-Наружная Штукатурка ( мокрый фасад) .-внутри все стены оштукатурены под финишную отделку и укладку плитки .Крыша :- Четырехскатная перекрыта металлочерепицей с утеплением на 200мм.- Система вентиляции с выходом на кровлю .-Установленная металлическая система водоотведения .Окна:- Оконный 5-ти камерный профиль 70мм (внутри белый, снаружи ламинация ГРАФИТ)-Стеклопакет МУЛЬТИФУНКЦИОНАЛЬНЫЙ напыление на стекле из оксида серебра не выпускает тепло из дома зимой и не пропускает ИК лучи в зной, 2-х камерный (3 стекла)Полы :Во всем доме установлены теплые полы . Разводка производилась по контурам с возможностью регулировки температуры в каждой комнате Электрика :Оформлено и заведено в дом 15кВт 3 фазы Разводка сделана по всему дому с учетом максимально всех потребностей .Кабель используемый в разводке ГОСТ .Газ :На участке установлен Газгольдер емкостью 4000 л , полной заправки которого вам хватит на 1 год эксплуатации . Установку и подключение производила специализированная компания (есть договор ).Автономность .Установлен и введен в эксплуатацию газовый котел 2-ух контурный который позволяет и производить отопление в помещениях и греть воду .Ограждение :По лицевой части участка установлен металлический секционный вентилируемый забор с горизонтальными ламелями .По всем остальным сторонам установлен деревянный забор .Установлены откатные ворота с автоматикой Alutech.Вода и канализация :скважина 50 м. с чистой артезианской водой, установлен насос с автоматикой и системой очистки .выгребная яма на 8 куб.м.Этот дом стоит посмотреть!
216 м2
2 этажа
- Показать контакты
- Добавить в избранное
216 м2
2 этажа
16 590 000
76 664 /м2
