Продаётся полноценна 2- х комнатная квартира 97 серии на Тополиной Алее!
Дом на второй линии, окна выходят во двор!
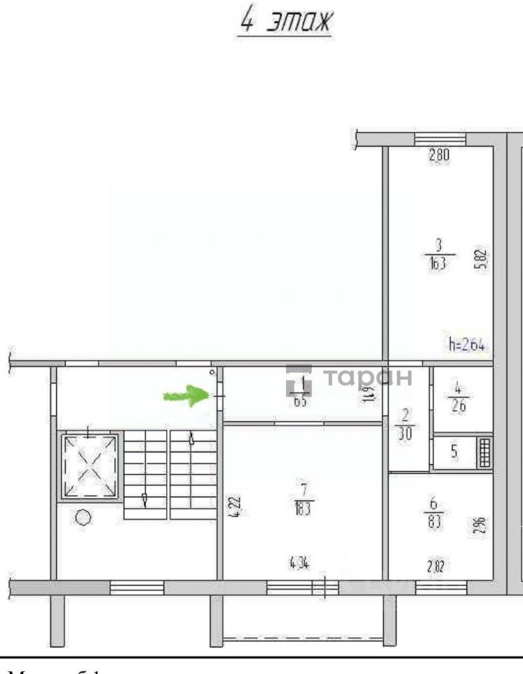
Комфортный 4 этаж!
Квартира в жилом состоянии, комнаты площадью 18м2+16м2.
Хорошая управляющая компания, чистый подъезд, доброжелательные соседи!
Вся инфраструктура и транспортная развязка в шаговой доступности!
Прямая продажа!
Документы готовы!
1 взрослый собственник!
Любая форма расчета!
Ключи в день полной оплаты!
Номер объекта: #1/541718/23208















