Если цена в объявлении изменится, мы сразу сообщим вам об этом на электронную почту.
Нажимая «Подписаться», вы соглашаетесь с правилами.
продам 1-к, Культуры, 553 300 000 ₽
18 ноя
Дата публикации объявления
Обн. 8 мая
Дата обновления объявления
8
Количество просмотров (+ просмотры за сегодня)
Топ
97 633 ₽/м²
Чистая продажа
Термин "Чистая продажа" означает, что в квартире никто не прописан или
есть куда выписаться и вывезти вещи. Это лучший вариант для покупателя.
Вероятность срыва сделки минимальна.
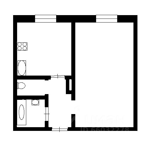
Код объекта: 1926749. Продаётся 1-комнатная квартира 121 серии в Калининском районе. Параметры: Планировка: просторная комната, уютная кухня, раздельный санузел, балкон остеклен. Состояние: косметический ремонт, жилое состояние. Можно заехать и жить или сделать ремонт под свой вкус и свои дизайнерские предпочтения. Преимущества: Локация — жилой район с развитой инфраструктурой. Все социально значимые объекты: школа, детские сады, поликлиника, магазины, супермаркеты, остановки общественного транспорта в шаговой доступности. Двор: оснащенная детская и спортивная площадки, наземная парковка. Важно: полностью чистая история, один собственник, более 15 лет владения, отсутствие долгов по ЖКХ, обременений и зарегистрированных лиц.
Код объекта: 1926749. Продаётся 1-комнатная квартира 121 серии в Калининском районе. Параметры: Планировка: просторная комната, уютная кухня, раздельный санузел, балкон остеклен. Состояние: косметический ремонт, жилое состояние. Можно заехать и жить или сделать ремонт под свой вкус и свои дизайнерские предпочтения. Преимущества: Локация — жилой район с развитой инфраструктурой. Все социально значимые объекты: школа, детские сады, поликлиника, магазины, супермаркеты, остановки общественного транспорта в шаговой доступности. Двор: оснащенная детская и спортивная площадки, наземная парковка. Важно: полностью чистая история, один собственник, более 15 лет владения, отсутствие долгов по ЖКХ, обременений и зарегистрированных лиц. Хороший вариант как для первого самостоятельного жилья, так и для инвестиции (пассивный доход). Связь: по телефону с 9:00 до 21:00. Серьёзным покупателям готовы предоставить все документы и показать квартиру в удобное время.