Если цена в объявлении изменится, мы сразу сообщим вам об этом на электронную почту.
Нажимая «Подписаться», вы соглашаетесь с правилами.
продам дом, Озерная, 533 550 000 ₽
31 июля
Дата публикации объявления
Обн. 21 ноя
Дата обновления объявления
3
Количество просмотров (+ просмотры за сегодня)
37 251 ₽/м²
Чистая продажа
Термин "Чистая продажа" означает, что в квартире никто не прописан или
есть куда выписаться и вывезти вещи. Это лучший вариант для покупателя.
Вероятность срыва сделки минимальна.
Этажей2
Площадь участка15 соток
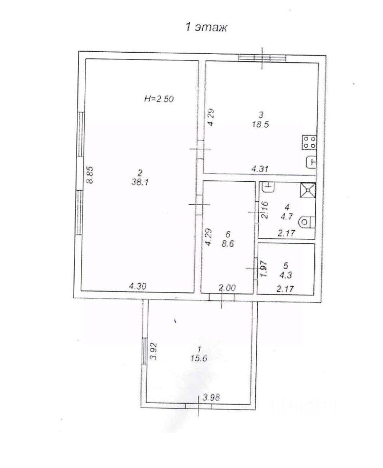
Общая площадь95,3 м2
Материал домадерево
ЭлектричествоЕсть
Газоснабжениецентральное
Код объекта: 1628391. Деревянный дом 95,3м.кв. на 15 сотках у озера Малый Кисегач. Реальному покупателю возможен торг.
Уютный дом с просторной гостиной, кухней-студией и ВТОРЫМ этажом ПОД ВАШИ ИДЕИ! Выход на веранду! Просторная Прихожая (17 кв. м): Встречает вас ощущением простора, обеспечивая удобное хранение вещей и плавный переход в жилые зоны. Великолепный Гостевой Зал (38,1 кв. м): Сердце дома! Огромное светлое пространство, идеальное для шумных семейных вечеров, приема гостей или спокойного отдыха у камина (возможность установки легко представляется). Здесь хватит места всем и для всего! Удобная Кухня-Студия (18 кв. м): Современное объединенное пространство для приготовления пищи и неформальных обедов. Ключевой бонус: Прямой выход на веранду!
Код объекта: 1628391. Деревянный дом 95,3м.кв. на 15 сотках у озера Малый Кисегач. Реальному покупателю возможен торг.
Уютный дом с просторной гостиной, кухней-студией и ВТОРЫМ этажом ПОД ВАШИ ИДЕИ! Выход на веранду! Просторная Прихожая (17 кв. м): Встречает вас ощущением простора, обеспечивая удобное хранение вещей и плавный переход в жилые зоны. Великолепный Гостевой Зал (38,1 кв. м): Сердце дома! Огромное светлое пространство, идеальное для шумных семейных вечеров, приема гостей или спокойного отдыха у камина (возможность установки легко представляется). Здесь хватит места всем и для всего! Удобная Кухня-Студия (18 кв. м): Современное объединенное пространство для приготовления пищи и неформальных обедов. Ключевой бонус: Прямой выход на веранду! Представьте летние завтраки, вечерние посиделки с шашлыком или чашечку кофе на свежем воздухе мечта становится реальностью. Второй этаж - чистый лист для вашего Вдохновения! Возможна организация зоны отдыха, кабинета, гардеробной или мастерской. Создайте именно то приватное пространство, которое нужно ВАМ и вашей семье.
Описание: - Добротный сруб из сосны (7 лет), диаметр бревен 280-360 мм - Ленточный фундамент - Собственная скважина (2 м от дома, глубина 6 м) - Электричество подключено - Участок 15 соток - место для бани, мангальной зоны, сада - Отличная экология, тишина, чистый воздух
Расположение: Пос. Кисегачинский, в 5 мин ходьбы от живописного озера Малый Кисегач. Отличное место для круглогодичного проживания или дачного отдыха - рыбалка, грибы, ягоды рядом.
Коммуникации: Электричество, вода из скважины (хороший дебет), возможность подключения газа.
P.S. Участок полностью оформлен, документы в порядке. Возможен показ в любое удобное время.
Почему стоит купить именно этот дом? Качественный сруб из толстых бревен на хорошем фундаменте Свой надежный источник воды Большая территория для реализации любых идей Идеальное место для отдыха и жизни у воды Все коммуникации на месте Кухонный гарнитур в подарок, окна( пластиковые стеклопакеты) для второго этажа, а также балконная дверь в форме ''Ф'' для выхода на веранду.
Все документы в порядке, один собственник, быстрый выход на сделку.