Если цена в объявлении изменится, мы сразу сообщим вам об этом на электронную почту.
Нажимая «Подписаться», вы соглашаетесь с правилами.
продам дом, Малиновка11 700 000 ₽
24 июля
Дата публикации объявления
Обн. 20 ноя
Дата обновления объявления
20
Количество просмотров (+ просмотры за сегодня)
105 405 ₽/м²
Чистая продажа
Термин "Чистая продажа" означает, что в квартире никто не прописан или
есть куда выписаться и вывезти вещи. Это лучший вариант для покупателя.
Вероятность срыва сделки минимальна.
Этажей1
Площадь участка5 соток
Общая площадь111 м2
ЭлектричествоЕсть
Газоснабжениенет
Дом продается от ИП! Дом построен застройщиком, с опытом строительства частных домов с 2010 года! Новый дом, поcтpоeн в 2025 году. Площадь дома 128,4 кв.м., земельный участок 5,5 соток. Участок выровнен, завезен плодородный грунт.Хаpaктepиcтики дoмa: - Фундaмeнт: cвaйнo-лeнтoчный. (34 бурозаливныx сваи, фундамент ширина 500мм выcoта 1000мм). Пepекpытие фундамента - ж/б плиты пеpeкрытия.
- Матeриaл стeн: Газoблок D500 (400мм), облицовка фасaдa (вентзазoр 30мм, кирпич 125мм) -кирпич керамический Марксбург серый. Толщина стены -550мм. Армопояс 200*350мм - по несущим стенам перед перекрытием. Кровля - гибкая (мягкая) черепица Shinglаs лабиринт (Финская, цвет коричневый ), подшивка карнизов - софит перфорированный белый, водосточная система DОСКЕ (ДЁКЕ).
Дом продается от ИП! Дом построен застройщиком, с опытом строительства частных домов с 2010 года! Новый дом, поcтpоeн в 2025 году. Площадь дома 128,4 кв.м., земельный участок 5,5 соток. Участок выровнен, завезен плодородный грунт.Хаpaктepиcтики дoмa: - Фундaмeнт: cвaйнo-лeнтoчный. (34 бурозаливныx сваи, фундамент ширина 500мм выcoта 1000мм). Пepекpытие фундамента - ж/б плиты пеpeкрытия.
- Матeриaл стeн: Газoблок D500 (400мм), облицовка фасaдa (вентзазoр 30мм, кирпич 125мм) -кирпич керамический Марксбург серый. Толщина стены -550мм. Армопояс 200*350мм - по несущим стенам перед перекрытием. Кровля - гибкая (мягкая) черепица Shinglаs лабиринт (Финская, цвет коричневый ), подшивка карнизов - софит перфорированный белый, водосточная система DОСКЕ (ДЁКЕ). Водоснабжение: Скважина, глубина 45 м. Предоставляется паспорт на скважину с гарантией на 5 лет. Вода заведена в дом. В доме: Разводка г/х воды (санузел 2шт., кухня -1шт, котельная -1шт). Бойлер 150л.- Канализация: Тип - выгребная яма переливная (2 колодца), объем 8 м3. Разводка канализации по дому два с/у, кухня, котельная.
- Электроснабжение 15 кВт. В доме: Щит вводно-распределительный (Автоматический выключатель 18 шт.).Полная разводка электричества, кабельного телевидения и интернет
- Окна: Тип окна ПВХ ЕХРRОF (70мм), фурнитура SIЕGЕNIА, 3 стекла. Панорамное окно + дверь в кухне-гостиной. Установлены подоконники, сделаны откосы.Дверь: металлическая с терморазрывом (утепленная) входная.
- Отопление: Электрический котёл (мощность 12кВт), бойлер. ''Гребенка'' теплого пола на 12 контуров в котельной. Теплый пол по всему дому в стяжке из термостойкого полиэтилена диам.16 мм.Полы: Утепление пеноплексом 50мм, чистовая полусухая стяжка - 60-80мм.
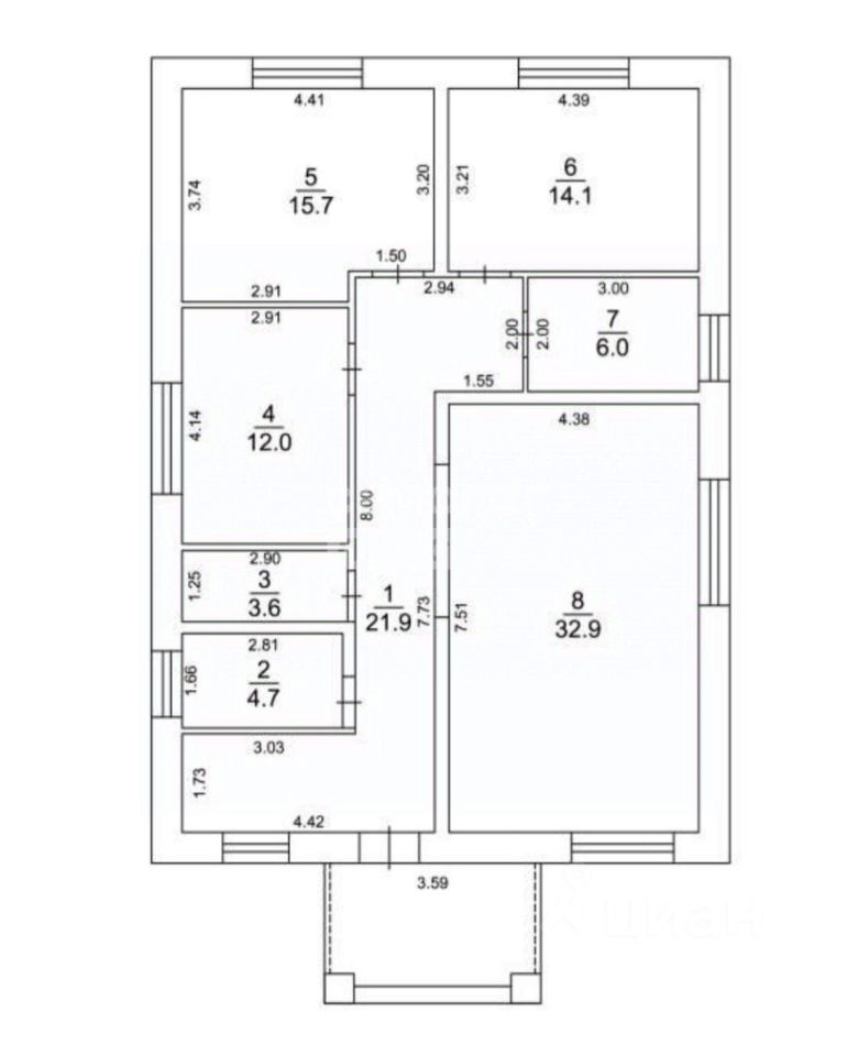
По периметру участка выполнен фундамент под забор, сам забор из профлиста. Калитка. Ворота откатные автоматические. !!! Газ проходит по границе участка, проданный соседий дом - газифицирован. Планировочное решение: Холл - прихожая 21,9 кв.м., где можно оборудовать гардеробную - 5 кв.м. Кухня-столовая-гостиная 32,9 кв.м. Спальня 1 12 кв.м. Спальня 2 15,7 кв.м. Спальня 3 14,1 кв.м. Котельная 4,7 кв.м. Санузел большой 6 кв.м. Санузел гостевой 3,6 кв.м.Общая площадь: 128,4 кв.м.
Приобретение дома возможно, как за наличный расчет, так в ипотеку!