Объект 389.
Продаётся просторный уютный дом с полной чистовой отделкой, в п. Прудный, 5 минут езды от п. Красное поле.
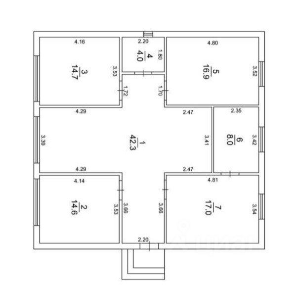
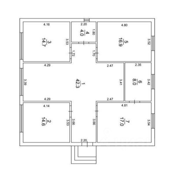
Отличная удобная планировка, 4 комнаты (все раздельные) + кухня-гостинная, 2 детские, 1 гостевая комната и мастер спальня со своим санузлом.
Комунникации (скважина, септик, тёплые электрические полы).
Участок тупиковый, удачно расположен, рядом с лесом, перед домом свободная земля, которой можно пользоваться.
Дом огорожен забором с 3-х сторон, установлены раздвижные ворота с калиткой.
Документы в полном порядке, собственник физ.лицо.
Продажа в связи со сменой места жительства.
Бонусом остается кухонный гарнитур!



















