Если цена в объявлении изменится, мы сразу сообщим вам об этом на электронную почту.
Нажимая «Подписаться», вы соглашаетесь с правилами.
продам дом, Садовая6 000 000 ₽
24 июня
Дата публикации объявления
Обн. 6 ноя
Дата обновления объявления
65 934 ₽/м²
Чистая продажа
Термин "Чистая продажа" означает, что в квартире никто не прописан или
есть куда выписаться и вывезти вещи. Это лучший вариант для покупателя.
Вероятность срыва сделки минимальна.
Этажей1
Площадь участка5 соток
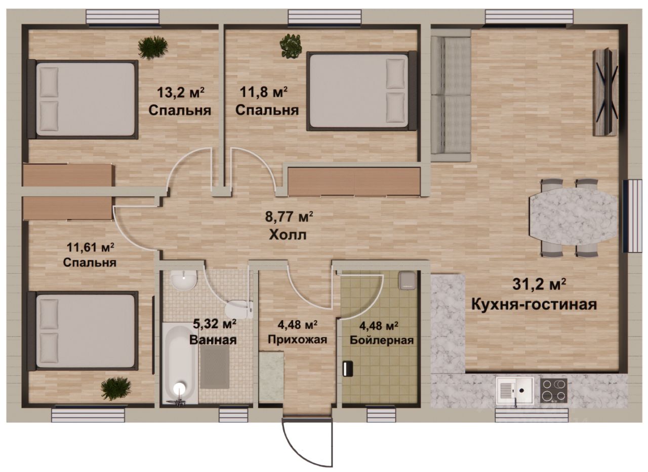
Общая площадь91 м2
ЭлектричествоЕсть
Газоснабжениецентральное
Самый любимый проект дома наших клиентов ! Участок с подрядом.
Характеристики: - 91м2 полезной площади - надежный фундамент с большим запасом прочности и теплыми полами по всему периметру - мягкая отмостка - газоблок ИНСИ 300мм - армопояс - окна с двухкамерным стеклопакетом и качественной фурнитурой.
Самый любимый проект дома наших клиентов ! Участок с подрядом.
Характеристики: - 91м2 полезной площади - надежный фундамент с большим запасом прочности и теплыми полами по всему периметру - мягкая отмостка - газоблок ИНСИ 300мм - армопояс - окна с двухкамерным стеклопакетом и качественной фурнитурой. Ламинация под цвет кровли - входная дверь с терморазрывом - перекрытие утеплено базальтовой крошкой 200мм - кровля профилированный лист толщиной 0,4мм ГОСТ - установлены водотливы - фасад дома закрыт теплопанелями толщиной 50мм с декоративным покрытием - в доме разведены все коммуникации (вода, слив, электричество) - установлен электро котел 9кВт для теплого пола и вся система отопления - стены оштукатурены
Данный проект дома можно увидеть в живую на экскурсии с нашим Экспертом! У нас всегда есть на этапе строительства дома такой планировки.
Дом получается теплым, светлым и максимально функциональным. Рассчитан на семью с 2-3 детьми.
За дополнительную оплату можем прокачать данный дом:
- просторной террасой - заземлением дома
Пишите или звоните для записи на просмотр как готовых, так и строящихся домов от компании Житеево
*цена товара указана за ''Базовую'' комплектацию. Стоимость полной комплектации, указанной в описании, вы можете уточнить в отделе продаж